4 BEDROOM SEMI-DETACHED DUPLEX
[40 plot(s)]
Plot Photos
Plot Description
Ground Floor
1 Ante room and Visitor toilet, 1 Living and Dining room, 1 Kitchen and Store, 1 Bedroom Ensuite
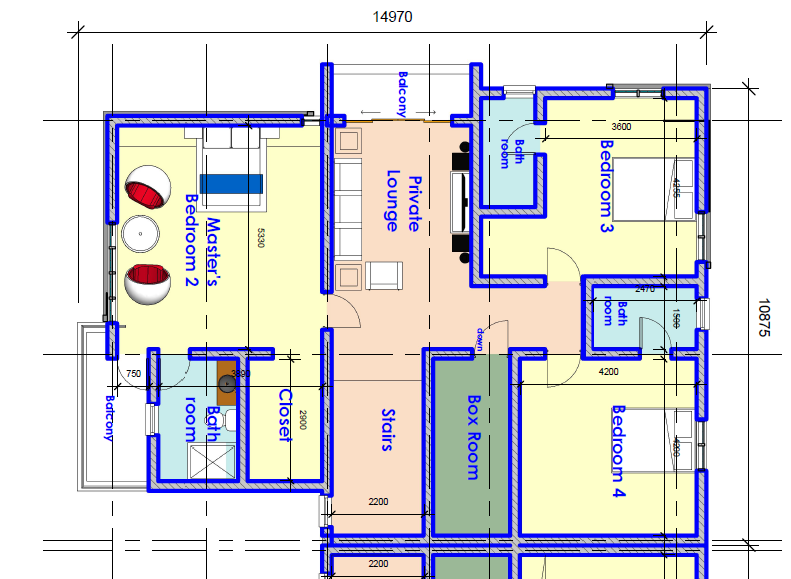
First Floor
A Family Lounge, 2 Bedrooms all Ensuite, A Spacious Masters room, Bathroom and Balcony
Quick Summary
-
Plot Size:
500 m 2
-
Plot Price:
₦ 600,000
₦ 100,000 -
Plot Discount
(Full Payment):₦ 500,000
-
Cost of Infrastructure:
₦ 3,500,000
-
Total Cost:
₦ 3,600,000